(抗击新冠肺炎)仇保兴:今后所有医院设计要考虑可改造成传染病医院
关键字: 医院设计,医院规划设计,医院装修设计,医院品牌设计,医院VI设计
发布时间:2020-02-26

国务院参事、中国城市科学研究会理事长仇保兴。 受访者提供
(抗击新冠肺炎)仇保兴:今后所有医院设计要考虑可改造成传染病医院2月20日,国务院参事、中国城市科学研究会理事长仇保兴建议,在确保疫情不扩散的前提下,尽快促进复工复产和扩大投资,尽快实现“疫后复兴”。同时应尽快提出强化全国公共防疫和治疗体系建设方案,今后所有医院、住宿制学校和培训机构的设计方案都必须考虑到防疫时能快速改造成传染病医院。传染病作为一种特殊疾病逐步被人们所重视,从2013年非典开始,再到2020年的新冠肺炎,人们对传染病的认识上升到一个新的高度,从基层到各监管部门,不得不对烈性传染病开始新的预防与应急措施,各大医院在改扩建过程中,重点考虑传染病科室的布局、流线及功能分区。笔者通过对传染病医院的设计,调查,列出传染病医院护理单元在建设中应注意的问题及各个功能分区之间的流线关系,那么传染病医院设计有哪些要点呢,医博传人设计团队的一些心得和大家分享一下。1 医院建设采取的基本措施 传染病的特征主要包括:有传染性和流行性,感染后常 有免疫性。传染病的预防应采取以切断主要传播环节为主导 的综合措施。传染病的传播和流行必须具备 3 个环节,即传染源、传 播途径及易感者。若能完全切断其中的一个环节,即可防止 该种传染病的发生和流行。在医院建设中,常采用双通道的 方式切断传播途径来控制传染病的传播。一些规模较大的医 院或有专门要求的医院设有感染病房,有专门传染病房的医 院一般都将感染门诊用房与传染病房合并建设,而没有传染 病房的医院,一般都在门急诊用房区设置专门的出入口、独 立用房区域用于承担感染门诊的功能。2 感染门诊的设置方式 感染门诊用房主要以呼吸道、消化道等感染疾病为主, 自成一区,宜靠近急诊部并设置单独的出入口,不同病种不 易使用同一间诊室。医护区须有独立的出入口。感染门诊功能用房可根据需要配置。如:预诊分诊接诊、 挂号收费、诊查、治疗、药房、检验、移动 X 光机室、留观 室、病患专用卫生间、医护人员更衣换鞋淋浴、缓冲间、医 护专用卫生间、值班等房间。3 传染病医院住院部的分区设置模式 传染病护理单元按不同病种分区设置,通常设呼吸道传 染病护理单元和消化道传染病护理单元。不同传染病护理单 元应分别设置,每护理单元(病区)设置 32~42 床位,不同 传染病种患者应分别安排在不同病区构成不同护理单元,不 得混合安排,如必须合并时应能合理分隔。住院部出入口处可以单独设置出入院探视大厅、出入院 办理登记处、交费结账窗口、医保办公室、病人住院接诊处、 病人出院更衣处、财务会计室、工作人员更衣厕所。每护理 单元可根据不同传染病种分设 1 床间、2 床间或多床间,各 病室均应附设卫生间。护理单元应按传染病隔离要求分设病患者使用通道,包 括垂直交通楼电梯,病患者由专用通道进入病室,医务工作 人员使用另外垂直交通楼电梯及走廊进入工作区,医务工作 人员进出工作区口部应按卫生要求设置卫生通过室。传染病 区标准护理单元,采用三区三廊的模式,即分清洁区、半清 洁区、污染区,在各区间设消毒通过处理。走廊也根据三种 功能分区相应地分为清洁走廊、半清洁走廊、污染走廊。 4 传染病护理单元交通流线 在病区中,物品、病人与医护人员流线严格分离。物品 只从清洁区向污染区单向流动。医护人员由清洁区经卫生通 过,进入工作区(半清洁区),由医护人员专用走廊经缓冲间 进入病房,医护人员离开传染区或半清洁区时有严格消毒通 过。护理单元备餐间分成相邻洁污独立小间,相互间设传递 窗,患者餐食由工作人员在清洁备餐间分取,由传递窗送至 各病房。备餐间内设有专用送餐梯与地营养厨房相通。5.1 烈性呼吸道感染病房 烈性传染病室与医护走廊间应设有双门密闭式传递窗,病室 与走廊间设缓冲过渡小间,将门错开布置避免气流倒灌,过 渡小间内应设非手动式龙头刷手池,医务人员进出病室刷手用。
5.2 非呼吸道感染病房 非呼吸道感染病室与走廊间不需要设缓冲小室,医务人 员可直接从医护走廊进入病室。图示如下:
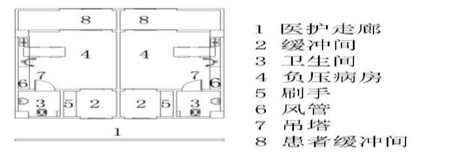
5.3 负压病房 在特大型传染病医院可设置 1-2 个负压病房的护理单元, 考虑正负压转换,平时与应急时期相结合,在中型医院中, 可在其中 ICU 病区内设置 2-4 间负压监护室。图示如下:
6 负压手术室的设置 负压手术室必须设置双通道,患者通道和医护通道,不 得与普通手术室共用通道。一般做法是在手术部入口外部独 立设置负压手术室患者入口,而医护入口则设置在手术区洁 净走廊内部,设置缓冲间,便于医护人员进出。通风空调做 到负压控制,房间空气回收后通过特殊管道消毒清洁后在排 入大气中,防止与外界直接对流。 7 结语 传染病最令人担忧的特征之一即是它会对周围健康人 群产生坏的影响,根据我国《传染病防治法》规定,预防、 控制和消除传染病的发生是各级部门的职责,有效预防和控 制传染病的蔓延,是传染病医院建设的重中之重。因此在建 筑设计中,要严格按照双通道设置模式,切断传播途径,隔 离病患是控制传染病的关键所在。